Модный интерьер Ключи и скрипки - новый бестселлер Тани Латуковой  
  Арт-векторы     Каталог рисунков     Эскизы и проекты     Галерея     Арт-детали      
 
Керамическая плитка     Красота камня     Мозаика из камня и смальты     Художественный паркет     Естественность дерева     Художественная ковка     Произведения искусства    
 
     

Расчет лестницы

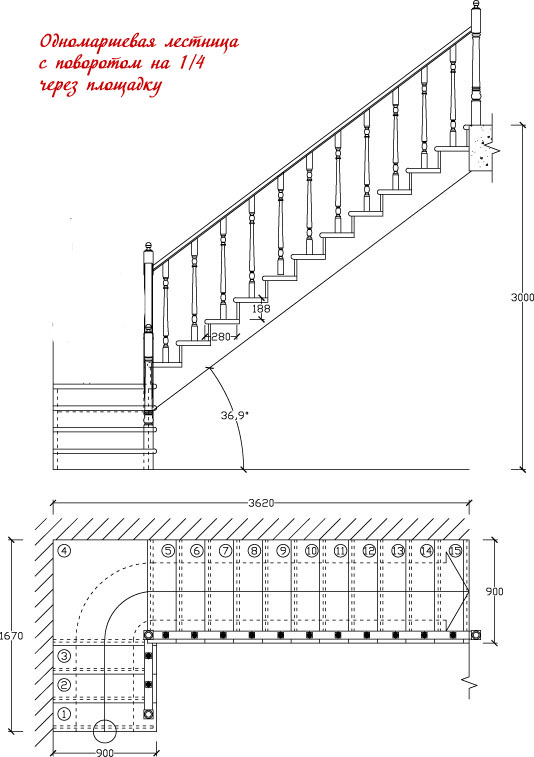
Одномаршевая лестница с поворотом на 1/4 через площадку (высота 3,00 м )

Наименование ДУБ ЯСЕНЬ БУК
1 ступени прямые (толщина 40 мм) 22 130.00 19340 20250
2 фальшгалт 270 240 250
3 подступени 11 380.00 9950 10420
4 площадка (толщина 40 мм) 6 690.00 5840 6120
5 косоур 350х40 26 340.00 23070 24160
6 косоур 200х40 7 910.00 6930 7250
7 балясины (50х50х900) 7 150.00 6300 6580
8 поручень (70х40) 3 660.00 3200 3360
9 опорные столбы (80х80х1100) 6 900.00 6040 6340
10 несущий столбы 80х80 1 870.00 1640 1720
  Итого столярка: 94 250 82 500 86 400
  Лак (3 слоя) 10 450 10 450 10 450
  Покрытие лаком 9 430 8 250 8 640
  Монтаж: 39 940 35 420 36 920
  Транспорт: 4 950 4 950 4 950
  ИТОГО: 159 000р. 141 550р. 147 340р.

Примечание: Приведенные в расчете цены актуальны по состоянию на 1 января 2012 года.



Смотрите также:

Одномаршевая прямолинейная лестницаОдномаршевая прямолинейная лестница  
Высота 3 метра, угол наклона 36 градусов, длина проекции на пол 3 метра 80 см. 14 прямых ступеней, 1 ступень (нижняя) лекальная, с закругленным углом. Глубина ступени 28 см, высота 18.8 см. Подступени, типовые балясины и опорные столбы.

Прямолинейная  лестница с поворотом на 1/2Прямолинейная лестница с поворотом на 1/2  
Высота 3 метра, 15 ступеней, 2 прямых марша плюс забежная часть. Ширина ступени 90 см, высота 18.8 см. Подступени, типовые балясины и опорные столбы.

Лестница с поворотом на 1/2 через промежуточную площадкуЛестница с поворотом на 1/2 через промежуточную площадку  
Высота 3 метра, 14 прямых ступеней, 2 прямых марша плюс площадка. Ширина ступени 90 см, глубина 28 см, высота 18.8 см. Подступени, типовые балясины и опорные столбы.


Следующая страница: Прямолинейная лестница с поворотом на 2/4

    • Главная   • Арт-векторы   • Лестницы   • Примеры расчета лестниц   • Одномаршевая лестница с поворотом на 1/4 через площадку  

Арт-векторы

Керамическая плитка и керамогранит

Изделия из камня

Мозаика из камня и смальты

Художественный паркет

Изделия из дерева

Художественная ковка

Лестницы
Такие разные лестницыЛестница в загородном домеЛестница как часть интерьераТипы лестницЛестница на косоурахЛестница на обсадной трубеСкладные лестницыНаружная лестницаПараметры лестницРасчёт лестничных элементовМонтаж лестницыОграждение лестницыПримеры расчета лестниц

Предметы искусства

Комнатные растения





     
  Стильный интерьер     Практикум дизайнера интерьера     Ванная комната     Детская комната     Интерьер и фен-шуй      
  О компании     Арт-консалтинг      
  © ТО «Модный интерьер», 2009-2026.   
Дизайн интерьера, художественный паркет, мозаика, ковка, деревянные лестницы,
столярные изделия, текстиль, предметы искусства, декоративные решения и аксессуары
Карта сайта