Модный интерьер Ключи и скрипки - новый бестселлер Тани Латуковой  
  Арт-векторы     Каталог рисунков     Эскизы и проекты     Галерея     Арт-детали      
 
Керамическая плитка     Красота камня     Мозаика из камня и смальты     Художественный паркет     Естественность дерева     Художественная ковка     Произведения искусства    
 
     

Примеры расчетов лестниц

Одномаршевая прямолинейная лестницаОдномаршевая прямолинейная лестница  
Высота 3 метра, угол наклона 36 градусов, длина проекции на пол 3 метра 80 см. 14 прямых ступеней, 1 ступень (нижняя) лекальная, с закругленным углом. Глубина ступени 28 см, высота 18.8 см. Подступени, типовые балясины и опорные столбы.

Прямолинейная  лестница с поворотом на 1/2Прямолинейная лестница с поворотом на 1/2  
Высота 3 метра, 15 ступеней, 2 прямых марша плюс забежная часть. Ширина ступени 90 см, высота 18.8 см. Подступени, типовые балясины и опорные столбы.

Лестница с поворотом на 1/2 через промежуточную площадкуЛестница с поворотом на 1/2 через промежуточную площадку  
Высота 3 метра, 14 прямых ступеней, 2 прямых марша плюс площадка. Ширина ступени 90 см, глубина 28 см, высота 18.8 см. Подступени, типовые балясины и опорные столбы.

Прямолинейная лестница с поворотом на 1/2 через 2 площадкиПрямолинейная лестница с поворотом на 1/2 через 2 площадки  
Высота 3 метра, 14 прямых ступеней, 2 прямых марша плюс 2 площадки. Ширина ступени 90 см, глубина 28 см, высота 18.8 см. Подступени, типовые балясины и опорные столбы.

Одномаршевая лестница с поворотом на 1/4Одномаршевая лестница с поворотом на 1/4  
Высота 3 метра, 15 ступеней - прямых, забежных и лекальных. Ширина ступени 90 см, глубина 28 см, высота 18.8 см. Подступени, типовые балясины и опорные столбы.

Одномаршевая лестница с поворотом на 1/4 через площадкуОдномаршевая лестница с поворотом на 1/4 через площадку  
Высота 3 метра, 15 ступеней плюс площадка. Ширина ступени 90 см, глубина 28 см, высота 18.8 см. Подступени, типовые балясины и опорные столбы.

Прямолинейная  лестница с поворотом на 2/4Прямолинейная лестница с поворотом на 2/4  
Высота 3 метра, 15 ступеней прямых и забежных. Ширина ступени 90 см, глубина 28 см, высота 18.8 см. Подступени, типовые балясины и опорные столбы.

Прямолинейная лестница с поворотом на 2/4 через площадкиПрямолинейная лестница с поворотом на 2/4 через площадки  
Высота 3 метра, ступени и две площадки. Ширина ступени 90 см, глубина 28 см, высота 18.8 см. Подступени, типовые балясины и опорные столбы.

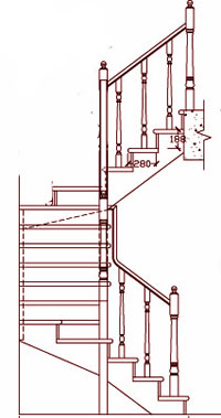
Винтовая лестница с поворотом на 3/4Винтовая лестница с поворотом на 3/4  
Высота 3 метра. Ширина ступени 90 см, глубина 28 см, высота 18.8 см. Подступени, типовые балясины и опорные столбы.



Смотрите также:

Лестница на косоурахЛестница на косоурах  
Если вы хотите самостоятельно изготовить лестницу на косоурах необходимо подобрать две доски, примерно таких же размеров, что и для изготовления лестницы с тетивами. Нужно закрепить на верхнюю часть кромки доски, «кобылки», в форме треугольника, затем устанавливать на них проступи. Для того чтобы «кобылки» крепились на косоурах, нужно сделать вырезы в форме треугольника.

Лестница на обсадной трубе  
По чертежу, который был предоставлен изготовителем лестницы, нужно определить точное положение на полу первой ступени, затем, необходимо надеть на упорный фланец эту ступень, с установленной на ней, заранее, стойкой ограждения. В том случае если лестница опирается на дощатый пол, следует удвоить толщину балки, под центральным стержнем.

Складные лестницы  
Чердачные, или же складные, лестницы – для чисто практического использования. Обычно они небольшие, всего на 10-15 ступеней. Занимают мало места и состоят обычно из одной стационарной и двух подвижных частей. Нижние части чердачных и складных лестниц можно складывать и поднимать наверх, а верхняя часть соединена с люком чердака.


    • Главная   • Арт-векторы   • Лестницы   • Примеры расчета лестниц  

Арт-векторы

Керамическая плитка и керамогранит

Изделия из камня

Мозаика из камня и смальты

Художественный паркет

Изделия из дерева

Художественная ковка

Лестницы
Такие разные лестницыЛестница в загородном домеЛестница как часть интерьераТипы лестницЛестница на косоурахЛестница на обсадной трубеСкладные лестницыНаружная лестницаПараметры лестницРасчёт лестничных элементовМонтаж лестницыОграждение лестницыПримеры расчета лестниц

Предметы искусства

Комнатные растения





     
  Стильный интерьер     Практикум дизайнера интерьера     Ванная комната     Детская комната     Интерьер и фен-шуй      
  О компании     Арт-консалтинг      
  © ТО «Модный интерьер», 2009-2026.   
Дизайн интерьера, художественный паркет, мозаика, ковка, деревянные лестницы,
столярные изделия, текстиль, предметы искусства, декоративные решения и аксессуары
Карта сайта