Модный интерьер Ключи и скрипки - новый бестселлер Тани Латуковой  
  Арт-векторы     Каталог рисунков     Эскизы и проекты     Галерея     Арт-детали      
 
Керамическая плитка     Красота камня     Мозаика из камня и смальты     Художественный паркет     Естественность дерева     Художественная ковка     Произведения искусства    
 
     

Расчет лестницы

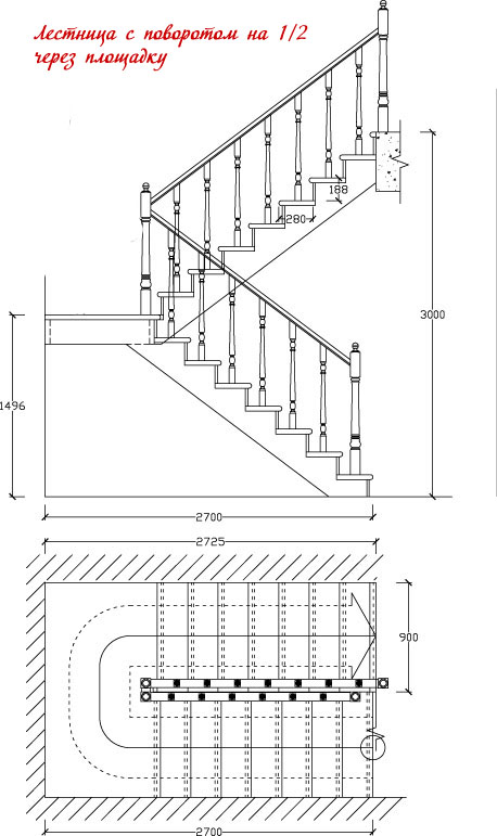
Лестница с поворотом на 1/2 через промежуточную площадку (высота 3,00 м )

Наименование ДУБ ЯСЕНЬ БУК
1 ступени прямые (толщина 40 мм) 20 550 17 960 18 810
2 фальшгалт 270 240 250
3 подступени 11 380 9 950 10 420
4 площадка 1 (толщина 40 мм) 7 050 6 160 6 440
5 площадка 2(толщина 40 мм) 7 780 6 800 7 110
6 косоур 350х40 26 050 22 820 23 890
7 косоур 200х40 5 270 4 620 4 840
8 косоур 400х40 11 590 10 150 10 630
9 балясины (50х50х900) 6 600 5 810 6 080
10 поручень (70х40) 2 520 2 200 2 300
11 опорные столбы (80х80х1100) 9 200 8 060 8 450
  Итого столярка: 108 200 94 700 99 170
  Лак (3 слоя) 10 920 10 920 10 920
  Покрытие лаком 10 820 9 470 9 920
  Монтаж: 45 480 40 280 42 000
  Транспорт: 4 950 4 950 4 950
  ИТОГО: 180 360 160 310 166 950

Примечание: Приведенные в расчете цены актуальны по состоянию на 1 января 2012 года.



Смотрите также:

Одномаршевая прямолинейная лестницаОдномаршевая прямолинейная лестница  
Высота 3 метра, угол наклона 36 градусов, длина проекции на пол 3 метра 80 см. 14 прямых ступеней, 1 ступень (нижняя) лекальная, с закругленным углом. Глубина ступени 28 см, высота 18.8 см. Подступени, типовые балясины и опорные столбы.

Прямолинейная  лестница с поворотом на 1/2Прямолинейная лестница с поворотом на 1/2  
Высота 3 метра, 15 ступеней, 2 прямых марша плюс забежная часть. Ширина ступени 90 см, высота 18.8 см. Подступени, типовые балясины и опорные столбы.

Прямолинейная лестница с поворотом на 1/2 через 2 площадкиПрямолинейная лестница с поворотом на 1/2 через 2 площадки  
Высота 3 метра, 14 прямых ступеней, 2 прямых марша плюс 2 площадки. Ширина ступени 90 см, глубина 28 см, высота 18.8 см. Подступени, типовые балясины и опорные столбы.


Следующая страница: Прямолинейная лестница с поворотом на 1/2 через 2 площадки

    • Главная   • Арт-векторы   • Лестницы   • Примеры расчета лестниц   • Лестница с поворотом на 1/2 через промежуточную площадку  

Арт-векторы

Керамическая плитка и керамогранит

Изделия из камня

Мозаика из камня и смальты

Художественный паркет

Изделия из дерева

Художественная ковка

Лестницы
Такие разные лестницыЛестница в загородном домеЛестница как часть интерьераТипы лестницЛестница на косоурахЛестница на обсадной трубеСкладные лестницыНаружная лестницаПараметры лестницРасчёт лестничных элементовМонтаж лестницыОграждение лестницыПримеры расчета лестниц

Предметы искусства

Комнатные растения





     
  Стильный интерьер     Практикум дизайнера интерьера     Ванная комната     Детская комната     Интерьер и фен-шуй      
  О компании     Арт-консалтинг      
  © ТО «Модный интерьер», 2009-2026.   
Дизайн интерьера, художественный паркет, мозаика, ковка, деревянные лестницы,
столярные изделия, текстиль, предметы искусства, декоративные решения и аксессуары
Карта сайта