Модный интерьер Ключи и скрипки - новый бестселлер Тани Латуковой  
  Арт-векторы     Каталог рисунков     Эскизы и проекты     Галерея     Арт-детали      
 
Керамическая плитка     Красота камня     Мозаика из камня и смальты     Художественный паркет     Естественность дерева     Художественная ковка     Произведения искусства    
 
     

Расчет лестницы

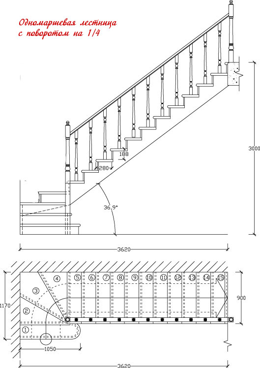
Одномаршевая лестница с поворотом на 1/4 (высота 3,00 м )

Наименование ДУБ ЯСЕНЬ БУК
1 ступени прямые (толщина 40 мм) 17 39015 200 15 920
2 ступени забежные (толщина 40 мм) 7 640 6 670 6 990
3 ступени лекальные (толщина 40 мм) 2 770 2 420 2 530
4 фальшгалт 270 240 250
5 подступени 9 960 8 710 9 120
6 подступени (забежные) 1 5601 360 1 430
7 подступени лекальные 1 680 1 470 1 530
8 косоур 27 360 23 970 25 100
9 балясины (50х50х900) 6 050 5 330 5 570
10 поручень (70х40) 3 660 3 200 3 350
11 опорные столбы (80х80х1100) 4 600 4 030 4 230
12 несущий столбы 80х80 1 870 1 640 1 720
 Итого столярка: 84 750 74 160 77 680
  Лак (3 слоя) 9 530 9 530 9 530
  Покрытие лаком 8 480 7 420 7 770
  Монтаж: 46 240 41 000 42 740
  Транспорт: 4 950 4 950 4 950
  ИТОГО: 153 930 137 050 142 670

Примечание: Приведенные в расчете цены актуальны по состоянию на 1 января 2012 года.



Смотрите также:

Одномаршевая прямолинейная лестницаОдномаршевая прямолинейная лестница  
Высота 3 метра, угол наклона 36 градусов, длина проекции на пол 3 метра 80 см. 14 прямых ступеней, 1 ступень (нижняя) лекальная, с закругленным углом. Глубина ступени 28 см, высота 18.8 см. Подступени, типовые балясины и опорные столбы.

Прямолинейная  лестница с поворотом на 1/2Прямолинейная лестница с поворотом на 1/2  
Высота 3 метра, 15 ступеней, 2 прямых марша плюс забежная часть. Ширина ступени 90 см, высота 18.8 см. Подступени, типовые балясины и опорные столбы.

Лестница с поворотом на 1/2 через промежуточную площадкуЛестница с поворотом на 1/2 через промежуточную площадку  
Высота 3 метра, 14 прямых ступеней, 2 прямых марша плюс площадка. Ширина ступени 90 см, глубина 28 см, высота 18.8 см. Подступени, типовые балясины и опорные столбы.


Следующая страница: Одномаршевая лестница с поворотом на 1/4 через площадку

    • Главная   • Арт-векторы   • Лестницы   • Примеры расчета лестниц   • Одномаршевая лестница с поворотом на 1/4  

Арт-векторы

Керамическая плитка и керамогранит

Изделия из камня

Мозаика из камня и смальты

Художественный паркет

Изделия из дерева

Художественная ковка

Лестницы
Такие разные лестницыЛестница в загородном домеЛестница как часть интерьераТипы лестницЛестница на косоурахЛестница на обсадной трубеСкладные лестницыНаружная лестницаПараметры лестницРасчёт лестничных элементовМонтаж лестницыОграждение лестницыПримеры расчета лестниц

Предметы искусства

Комнатные растения





     
  Стильный интерьер     Практикум дизайнера интерьера     Ванная комната     Детская комната     Интерьер и фен-шуй      
  О компании     Арт-консалтинг      
  © ТО «Модный интерьер», 2009-2026.   
Дизайн интерьера, художественный паркет, мозаика, ковка, деревянные лестницы,
столярные изделия, текстиль, предметы искусства, декоративные решения и аксессуары
Карта сайта