Модный интерьер Ключи и скрипки - новый бестселлер Тани Латуковой  
  Арт-векторы     Каталог рисунков     Эскизы и проекты     Галерея     Арт-детали      
 
Керамическая плитка     Красота камня     Мозаика из камня и смальты     Художественный паркет     Естественность дерева     Художественная ковка     Произведения искусства    
 
     

Расчет лестницы

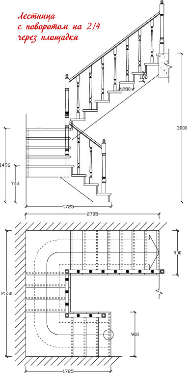
Прямолинейная лестница с поворотом на 2/4 через площадки (высота 3,00 м )

Наименование ДУБ ЯСЕНЬ БУК
1 ступени прямые (толщина 40 мм) 20 550 17 960 18 810
2фальшгалт 270 240 250
3 подступени 11 380 9 950 10 420
4 площадка 1 (толщина 40 мм) 7 740 6 760 7 080
5 площадка 2(толщина 40 мм) 7 180 6 270 6 570
6 косоур 350х40 26 340 23 070 24 160
7 косоур 200х40 15 810 13 850 14 500
8 балясины (50х50х900) 6 600 5 810 6 080
9 поручень (70х40) 890 1 650 1 730
10 опорные столбы (80х80х1100) 9 200 8 060 8 450
  Итого столярка: 106 910 93 570 97 990
  Лак (3 слоя) 11 220 11 220 11 220
  Покрытие лаком 10 690 9 360 9 800
  Монтаж: 45 090 39 950 41 650
  Транспорт: 4 950 4 950 4 950
  ИТОГО: 178 840 159 030 165 600

Примечание: Приведенные в расчете цены актуальны по состоянию на 1 января 2012 года.



Смотрите также:

Прямолинейная  лестница с поворотом на 1/2Прямолинейная лестница с поворотом на 1/2  
Высота 3 метра, 15 ступеней, 2 прямых марша плюс забежная часть. Ширина ступени 90 см, высота 18.8 см. Подступени, типовые балясины и опорные столбы.

Лестница с поворотом на 1/2 через промежуточную площадкуЛестница с поворотом на 1/2 через промежуточную площадку  
Высота 3 метра, 14 прямых ступеней, 2 прямых марша плюс площадка. Ширина ступени 90 см, глубина 28 см, высота 18.8 см. Подступени, типовые балясины и опорные столбы.

Прямолинейная лестница с поворотом на 1/2 через 2 площадкиПрямолинейная лестница с поворотом на 1/2 через 2 площадки  
Высота 3 метра, 14 прямых ступеней, 2 прямых марша плюс 2 площадки. Ширина ступени 90 см, глубина 28 см, высота 18.8 см. Подступени, типовые балясины и опорные столбы.


Следующая страница: Винтовая лестница с поворотом на 3/4

    • Главная   • Арт-векторы   • Лестницы   • Примеры расчета лестниц   • Прямолинейная лестница с поворотом на 2/4 через площадки  

Арт-векторы

Керамическая плитка и керамогранит

Изделия из камня

Мозаика из камня и смальты

Художественный паркет

Изделия из дерева

Художественная ковка

Лестницы
Такие разные лестницыЛестница в загородном домеЛестница как часть интерьераТипы лестницЛестница на косоурахЛестница на обсадной трубеСкладные лестницыНаружная лестницаПараметры лестницРасчёт лестничных элементовМонтаж лестницыОграждение лестницыПримеры расчета лестниц

Предметы искусства

Комнатные растения





     
  Стильный интерьер     Практикум дизайнера интерьера     Ванная комната     Детская комната     Интерьер и фен-шуй      
  О компании     Арт-консалтинг      
  © ТО «Модный интерьер», 2009-2026.   
Дизайн интерьера, художественный паркет, мозаика, ковка, деревянные лестницы,
столярные изделия, текстиль, предметы искусства, декоративные решения и аксессуары
Карта сайта